NA PREDAJ ÚTULNÁ CHATA PRI KOMÁRNE

TOP PONUKA
Číslo ponuky:
2408
Okres:
Komárno
Obec:
Nová Stráž
Podlahová plocha:
72 m2
Počet podlaží:
3
Cena:
80.500,- Eur

Bližšie informácie:

Ing. Viktória Csémi
0904 358 524

Popis nehnuteľnosti

Doprajte si únik od každodenného zhonu! INVESTCONSULT REALITY Vám ponúka na predaj útulnú chatu – ideálne miesto na relax, oddych a načerpanie nových síl. Táto chata sa nachádza v tichom a pokojnom prostredí, blízko mesta Komárno a mosta Monostor cez rieku Dunaj.

Základné informácie:

  • Rok výstavby: 2020 (novostavba)
  • Výmera pozemku: 309 m² (v prípade záujmu je možnosť kúpiť aj záhradu o výmere 264 m2)
  • Zastavaná plocha prízemia: 49 m² plus podkrovie (15 m²) a pivnica (8 m²)
  • Kúrenie: krb na tuhé palivo
  • Teplá voda: elektrický bojler
  • Inžinierske siete: elektrická energia, voda zo studne (2ks)
  • Lokalita: Komárno, časť Nová Stráž
  • Cena so zariadením: 80.500,- Eur

Technické parametre:

·         Steny: pálená tehla plus tepelná izolácia

·         Okná: drevené

·         Strešná krytina: Bramac

·         Bleskozvod: áno

Vybavenie a výhody:

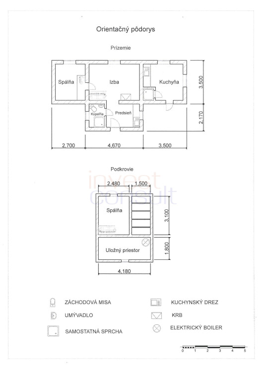
  • Prízemie: predsieň, obývacia izba, spálňa, kuchyňa, kúpeľňa, samostatná sprcha
  • Podkrovie: spálňa, úložný priestor
  • Pivnica: sklad
  • Vychutnajte si zimné večery pri praskajúcom krbe, ktorý dodáva chate čaro a teplo domova.
  • Kúpeľňa so sprchovým kútom a toaletou, ďalší sprchový kút.
  • Vlastný kúsok prírody so záhradou, kde môžete záhradkárčiť, relaxovať alebo si vychutnať grilovačky s rodinou a priateľmi.
  • Blízkosť turistických a cyklistických trás
  • Autobusová zastávka MHD vo vzdialenosti 200m.

Táto chata je ako stvorená pre rodinné chvíle a stretnutia s priateľmi – ideálne útočisko na víkendové pobyty, no zároveň dostatočne komfortná aj na dlhodobé bývanie pre tých, ktorí túžia po pokoji mimo ruchu mesta.

Ak Vás táto nehnuteľnosť zaujala, neváhajte nás kontaktovať pre viac informácií a dohodnutie obhliadky.

Bližšie informácie Vám poskytne a zabezpečí obhliadku:

Ing. Viktória Csémi, tel: 0904 358 524 (00421 904 358 524),

Ing. Zsolt Szabó, tel: 0903 445 082 (00421 903 445 082),

Office: 035/7702853

e-mail:  reality@investconsult.sk

 

PREDAJNÁ CENA JE UVEDENÁ VRÁTANE PROVÍZIE A ZAHŔŇA VYPRACOVANIE KÚPNEJ ZMLUVY NAŠOU RENOMOVANOU ADVOKÁTKOU NA ZÁKLADE DOHODNUTÝCH PODMIENOK MEDZI PREDÁVAJÚCIM A KUPUJÚCIM, OVERENIE PODPISOV NA KÚPNYCH ZMLUVÁCH, PODANIE NÁVRHU NA VKLAD DO KATASTRA S KOLKOM V HODNOTE 100,- EUR. V PRÍPADE POTREBY VÁM RADI POMÔŽEME VYBAVIŤ ÚVER NA KÚPU.